權威發布!洛陽地鐵1號線18個站點選址及出入口公布(效果圖)!
《洛陽城市軌道交通1號線工程車站總圖及方案》
已經市規劃委員會會議原則通過。
該方案對地鐵1號線各站點的選址、
出入口設置等情況進行了明確。
按照規劃,地鐵1號線全長22公里,
設車站18個(包括3個換乘車站),
平均站間距1.3公里,
車站各出入口均兼顧市政過街功能。
小編結合該方案,
為您介紹每個地鐵站選址、出入口等信息。

谷水站

該地鐵站位于中州路與西環路交叉口南側,是規劃中的谷水綜合交通樞紐的組成部分。該地鐵站設計中將綜合考慮車站與樞紐的銜接關系,在出入口設計上綜合樞紐方案考慮,在地鐵1號線與新安方向輕軌之間預留對接位置。該地鐵站為地下兩層島式站臺車站,共設6個出入口。

秦嶺路站
該地鐵站位于中州西路與秦嶺路交叉口,為地下兩層單柱島式站臺車站,沿中州路呈東西走向布置,共設4個出入口,分別位于中州路兩個方向、秦嶺路、建設路。
武漢路站
該地鐵站位于武漢路與景華路丁字路口,沿武漢路呈南北走向布置。該站為地下兩層島式站臺車站,在武漢路上設2個出入口,在景華路方向設1個出入口。
長安路站
該地鐵站位于長安路和西苑路交叉口,沿西苑路呈東西走向布置。該站為地下兩層島式站臺車站,在長安路和西苑路交叉口西側設2個出入口,在東方醫院南門附近設1個出入口。
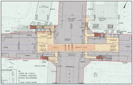
上海市場站
牡丹廣場站(換乘站)

該地鐵站位于西苑路牡丹廣場內,沿牡丹廣場呈東西走向布置,是地鐵1號線、3號線的換乘車站。我市規劃該地鐵站地下*層為商業+車站站廳層+1號線主變電所,地下二層為車站站臺層+停車場,規劃500個停車位。
按照規劃,站內地鐵1號線、3號線車站將采用平行四線換乘形式,且均為地下兩層島式站臺車站。該地鐵站將設7個出入口。
七里河站
該地鐵站位于中州西路與延安路交叉口西南處,沿延安路由西南向東北敷設。該站為地下兩層島式站臺車站,在路口設3個出入口。
王城公園站

該地鐵站位于中州中路與解放路交叉口,是地鐵1號線、2號線的換乘車站。按照規劃,站內1號線為地下三層島式站臺車站,2號線為地下兩層島式站臺車站。
該站共設6個出入口、23個緊急疏散口,未來唐宮路、解放路、中州路、凱旋路等地的居民和重要商業設施內的顧客都可就近進入地鐵站。
周王城廣場站

該地鐵站位于中州東路與人民路交叉口,在人民東路與人民西路之間,沿中州中路呈東西走向布置,將按照地下三層島式站臺車站建設。該站將設4個出入口,分別位于周王城廣場靠近中州路的兩側。
該地鐵站位于中州路與定鼎路交叉口西側,共設3個出入口,為地下兩層島式站臺車站,分別位于中州路南北兩側。

該地鐵站位于中州路與金業路交叉口西側,是1號線、4號線的換乘站,沿中州東路呈東西走向布置。本站地下兩層島式站臺車站,共設4個出入口。
青年宮站
該地鐵站位于中州東路與左安街路口,沿中州東路呈東西走向布置。該站按照地下三層島式站臺車站建設,地下*層為物業開發,地下二層為站廳層,地下三層為站臺層,將設5個出入口,分別與人防工程、青年宮廣場等處連接。
夾馬營站
該地鐵站位于華林路與中州東路口,為地下兩層雙柱島式站臺車站,設3個出入口。
啟明南路站
該地鐵站位于中州東路與啟明南路交叉口,沿中州東路呈東西走向布置,共設4個出入口,分別位于路口四個角,按照地下兩層島式站臺車站建設。
塔灣站

該地鐵站位于中州東路與塔東路交叉口,沿中州東路呈東西走向布置,為地下兩層島式站臺車站,將設4個出入口。
該地鐵站位于中州東路與安居路交叉口,沿中州東路呈東西走向布置,設4個出入口,未來恒大綠洲小區、客運東站等乘客都能就近出入。
楊灣站
該地鐵站位于中州東路,沿中州東路呈東西走向布置,共設4個出入口、3個物業出入口,為地下兩層島式站臺車站。
本文轉自豫融媒 *點號





